ขอนแก่น-ราษฎร์รวมตัวทำประชามติให้ภาครัฐยกเลิกประกาศที่สาธารณะประโยชน์ “โคกป่ากุง” หลังหลังอยู่กินมาหลายชั่วอายุคน แต่ถูกออกเอกสารสิทธิ์ทับที่ทำกิน บางรายมีโฉนดแต่ไม่สามารถทำธุรกรรมได้
ขอนแก่น-ราษฎร์รวมตัวทำประชามติให้ภาครัฐยกเลิกประกาศที่สาธารณะประโยชน์ “โคกป่ากุง” หลังหลังอยู่กินมาหลายชั่วอายุคน แต่ถูกออกเอกสารสิทธิ์ทับที่ทำกิน บางรายมีโฉนดแต่ไม่สามารถทำธุรกรรมได้

เมื่อวันที่ 16 กันยายน 2568 ที่ห้องประชุมโรงเรียนน้ำพองพัฒนศึกษา รัชมังคลาภิเษก บ้านหินกอง ต.น้ำพอง อ.น้ำพอง จ.ขอนแก่น นายอดิศักดิ์ กิตติปัญญาศิริ ปลัดอาวุโสชำนาญการอำเภอน้ำพอง, พันจ่าโทจำรัส โทอุทา นักวิชาการที่ดินชำนาญการพิเศษ สำนักงานที่ดินขอนแก่น สาขาน้ำพอง, เจ้าหน้าที่ตัวแทนนิคมสร้างตัวเองเขื่อนอุบลรัตน์ และส่วนราชการ องค์การปกครองส่วนท้องถิ่น พร้อมด้วยชาวบ้านกว่า 100 คน เข้าร่วมประชุม การทำประชาคมเพื่อประชามติยกเลิกประกาศที่สาธารณะประโยชน์ “โคกป่ากุง” โดยมี นายอัศวิน อินทราชา ประธานองค์กรเครือข่ายพัฒนาเกษตรกรไทย เป็นฝ่ายประสานงาน

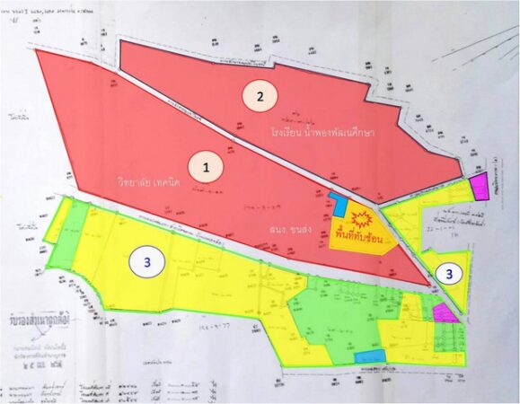
สำหรับ “โคกป่ากุง” อยู่ในพื้นที่ หมู่ที่ 4 บ้านหินกอง และหมู่ที่ 5 บ้านหินกองน้อย ตำบลน้ำพอง อำเภอน้ำพอง จังหวัดขอนแก่น ประชาชนได้เข้ามาตั้งบ้านเรือน และพักอาศัยเพื่อทำกินอยู่เป็นจำนวนมาก ซึ่งไม่ใช่เป็นโคก หรือป่า ดังเช่นในอดีต ซึ่งไม่สามารถใช้ประโยชน์ร่วมกัน เพราะที่ดินส่วนใหญ่ที่ประชาชนอยู่อาศัยได้ถือครอบครองตามเอกสารสิทธิ์ฯ ที่ทางราชการออกให้ ซึ่งบางส่วนก็ได้รับเอกสารสิทธิ์ เป็น โฉนดที่ดิน หรือ น.ส.3 ก และ น.ค.3 แต่ถูกทางภาครัฐได้ออกเอกสารสิทธิ์ทับซ้อน สร้างความเดือดร้อนให้กับผู้อยู่อาศัย จึงได้ร่วมกันทำประชาคมเพื่อขอมติในที่ประชุมทำการเพิกถอนประกาศฯ

นายนภดล กองการ และนายกิตติพงษ์ ชาดา ราษฎร์ที่ได้รับผลกระทบในการออกเอกสารทับซ้อน กล่าวว่า ปัญหาที่ชาวบ้านได้รับคือ มีใบ น.ค.3 จากนิคมสร้างตนเองเขื่อนอุบลรัตน์แล้ว แต่ไม่สามารถนำใบ น.ค.3 ไปยื่นออกโฉนดที่ดินได้ อยากให้ทางเจ้าหน้าที่ที่เกี่ยวข้องปลดล็อคปัญหา เนื่องจากเป็นการออกเอกสารสิทธิ์ทับซ้อนกับที่สาธารณะ โคกป่ากุง ทั้งที่ที่ทำกินของพวกตนบางคนเป็นเอกสารสิทธิ์ที่เป็นโฉนด แต่ก็ไม่สามารถทำธุรกรรมใดใดได้แต่อย่างใด อยากให้ทางภาครัฐเข้ามาช่วยเหลือโดยการยกพื้นที่ ที่ชาวบ้านอยู่อาศัยและทำกิน ออกเอกสารสิทธิ์ให้ราษฎร์ที่ครอบครองมาก่อน ในส่วนที่เป็นของหน่วยงานราชการก็ยังคงอยู่เหมือนเดิม

นายอัศวิน อินทราชา ประธานองค์กรเครือข่ายพัฒนาเกษตรกรไทย เผยว่า ในการทำประชาคมเป็นการเรียกร้องสิทธิทางที่ทำกินให้พี่น้องประชาชนที่อยู่อาศัยโดยถูกกฏหมาย ซึ่งในครั้งนี้ได้เรียนเชิญหน่วยงานภาครัฐที่เกี่ยวข้องเข้ามารับทราบปัญหาด้วย จากนั้นก็จะดำเนินการขับเคลื่อนไปยังอธิบดีกรมที่ดิน เพื่อยกที่สาธารณะผืนนี้ให้แก่พี่น้องเกษตรกร ซึ่งพื้นที่ส่วนนี้ที่เป็นที่ทำกินและอาศัย มีจำนวนร้อยกว่าไร่ ส่วนที่ของรัฐ ที่มี นสล.แล้ว ทางเราไม่ไปยุ่งเกี่ยว ซึ่งเราจะดำเนินการเอาพื้นที่นอก นสล. มาดำเนินการออกเอกสารสิทธิ์มาให้ราษฎร์ที่อาศัยอยู่แล้ว ซึ่งมีชาวบ้านอาศัยอยู่ 2 หมู่บ้าน คือบ้านหินกองน้อย หมู่ที่ 4,5
โดยปัญหาที่ผ่านมามีหน่วยงานราชการบางหน่วยสงวนสิทธิ์ที่ดินตรงนี้ ไม่กล้าออกเอกสารสิทธิ์ เนื่องจากเห็นว่าเป็นพื้นที่ของภาครัฐ ดังนั้นหน่วยงานของเราเป็นองกรที่ขับเคลื่อนเพื่อพี่น้องประชาชนเกี่ยวกับที่ทำกินจึงได้อาสาเข้ามาดำเนินการช่วยออกเอกสารสิทธิ์ให้แก่พี่น้องเกษตรกร










Users Today : 621
Users Yesterday : 1621
Views Today : 2150
Who's Online : 15